Around Phoenix, you’ll hear homes described as “Next Gen,” “multi-gen,” “casita,” or “in-law suite,” but they all circle the same idea: privacy and proximity under one roof. If you’ve crawled along the 303 in Surprise on a weeknight or wound through Peoria’s Aloravita foothills after a ballgame, you know why families here lean into multi-generational living. These floorplans ease carpool chaos, give snowbird relatives their own space during winter, and let ASU grads move back in without losing independence. What follows is a grounded look at who builds what, how it really feels day to day, and where the quirks show up in Maricopa County communities.
What Counts as a True Multi-Gen or Casita Home
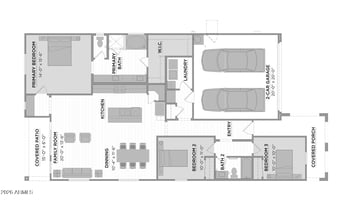
A multi-gen property in Phoenix is more than a spare bedroom with a bath. Think of it as a mini flat stitched into the floorplan: a side entry for independence, a lounge sized for daily use, and a kitchen setup that ranges from wet bar to full second kitchen. Some add their own garage bay or patio, giving the feel of a small apartment without leaving the main home. The concept is simple—live together, but not on top of each other.
Everyday Life in Phoenix Multi-Gen Homes
In Peoria’s Aloravita and Vistancia, grandparents often walk kids to Liberty High ballfields straight from their suites. In Surprise’s Asante, the dedicated one-car garage attached to a suite makes car juggling easier when practices run late at Surprise Stadium. Queen Creek’s Cadence and Eastmark communities showcase courtyard casitas that teens treat as hangouts until snowbird relatives arrive for winter. Up in Scottsdale’s McDowell Mountain Ranch or Fountain Hills’ Firerock Country Club, detached casitas double as work-from-home studios or caregiver quarters. And come March, families often time visits around Cactus League spring training—those casitas fill quickly. The bottom line: if a Tuesday morning flows without friction—school runs, coffee, work calls, and someone still asleep—the design works.
Which Builders Deliver Multi-Gen & Casita Options
Lennar - Next Gen® Home Within a Home
Lennar’s suites act like standalone apartments inside the house—separate entry, a real lounge, full kitchenette with appliances, and often a garage bay just for the unit. You’ll find them in Peoria (Aloravita), Surprise (Asante), and Queen Creek (Madera). A strong fit if you want turnkey independence baked in.
Taylor Morrison - Layered Levels of Independence
Their designs scale from upgraded en-suites to apartment-style wings with their own garage and entry. The Zion plan at Asante is the poster child—an entire side of the house functioning as a separate home. Perfect for families who want flexibility in how much independence a suite provides.
D.R. Horton - Winchester & Practical Multi-Gen
Horton keeps it simple. The Winchester feels like a compact flat integrated into the main house—with its own door, cozy lounge, private bath, and a kitchenette. Found in Buckeye, Goodyear, and Peoria, these homes serve buyers who want straightforward function at an attainable price.
Toll Brothers - Courtyard Casitas & Estate-Style Suites
Toll leans luxury: detached casitas off courtyards with patios and optional wet bars, or attached suites with soaring ceilings. Found in Queen Creek’s Caleda, Scottsdale’s Storyrock, and Fountain Hills’ Adero Canyon. Best for buyers wanting guest quarters that feel like boutique retreats.
Richmond American - Modern Living™ Collection
Richmond offers side-entry suites tucked inside traditional exteriors. Most include their own living space, kitchenette, and sometimes a laundry nook. It’s a way to fit two households under one roof while keeping curb appeal consistent—useful in master-planned communities.
Tri Pointe (Maracay) - GenSmart Suite®
Arizona-born, these suites emphasize adaptability. Builders often rework a garage bay or den into a self-sufficient wing with sitting space, bath, and kitchenette. Seen in Southwest Phoenix, San Tan Valley, and Gilbert, they’re ideal for buyers needing a flexible space that shifts with life stages.
Local Luxury & Custom Builders
Camelot Homes in Scottsdale and Blandford Homes in Mesa add detached casitas with private HVAC, kitchens, and courtyards. NEXTGEN Builders designs custom multi-generational properties with dual masters, full second kitchens, or standalone guest houses. Tailored solutions for buyers who want permanence and total control.
City Rules & HOA Realities
The City of Phoenix legalized accessory dwelling units (ADUs) in 2023, opening doors for detached casitas across town. But ADUs can’t be used as short-term rentals, and setbacks and lot coverage still apply. For official details, see the City of Phoenix ADU page. HOAs are the bigger wildcard—communities like Vistancia often restrict extra doors or overnight street parking. Always read CC&Rs and recent board notes before assuming flexibility.
Choosing the Right Multi-Gen Plan
- Entry flow: Is the suite door shaded and private, or squeezed beside the bins?
- Kitchen setup: Wet bar, kitchenette, or full kitchen—confirm appliances and venting in writing.
- Laundry: An in-suite stack saves hallway congestion.
- Noise & comfort: Separate insulation and thermostats matter more than brochures admit.
- Parking: A one-bay garage is ideal; if not, verify HOA parking rules in writing.
- Accessibility: Wide doors, step-free showers, and blocking for grab bars futureproof the suite.
Upsides and Quirks
- Upsides: Shared costs, built-in family support, flexible space for snowbirds or grads, and stronger resale in a market leaning multi-gen.
- Quirks: More doors and appliances mean more upkeep. Noise transfer happens without proper insulation. Some “guest suites” skip exterior doors or kitchens, reducing true independence.
- Pro tip: Upgrade flooring and soundproofing in the suite—it’s where independence is felt daily.
Financing & Appraisals
Multi-generational homes finance as standard single-family properties. Appraisers look for functional independence—a private entry, true living space, and a kitchen or kitchenette. Keep builder option sheets and invoices to back appraisal value. For insurance, clarify how coverage extends to family living semi-independently in the suite.
Bottom Line
Phoenix and Maricopa County offer multi-generational real estate across the board—from functional suites in Buckeye to boutique casitas in Scottsdale. The right choice isn’t about square footage; it’s about rhythm. If the layout smooths school runs, coffee stops, work calls, and guest visits without friction, you’ve found your fit. That’s the neighbor’s test—and it’s the one that matters most.



























































